Skip to main content

1 bed Penthouse for sale

€ 318,000

Mellieha | Finished
  • Bedroom 1 bedroom
  • Bathroom 1 bathroom
  • Area 108.50m2
  • Reference No. 137802

About the property

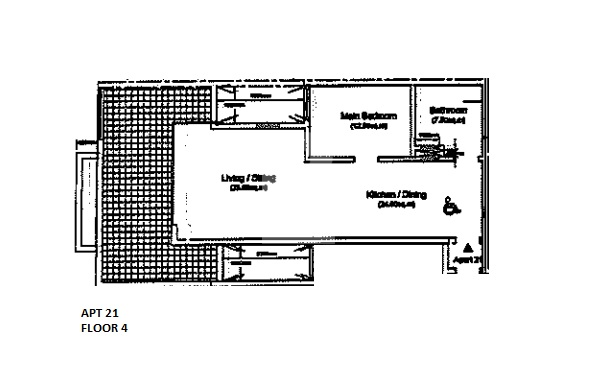
A newly built apartment complex in the heart of Mellieha within a walking distance to all amenities . This fourth floor penthouse layout comprises of one bedroom, bathroom and a decent sized open plan kitchen/living/dining area leading onto a large terrace enjoying views of the village and beyond. Will be sold finished except for internal doors. A great opportunity to purchase a penthouse for a reasonable price. Garages and car spaces available at an optional price. Freehold.

EPC Exemption Status: Owners to provide

Property Features

Property Location

Enquiry Form