Skip to main content

4 bed Houses of Character for sale

€ 535,000

Mellieha | Shell Form
  • Bedroom 4 bedroom
  • Bathroom 4 bathroom
  • Area 123.00m2
  • Reference No. 813067

About the property

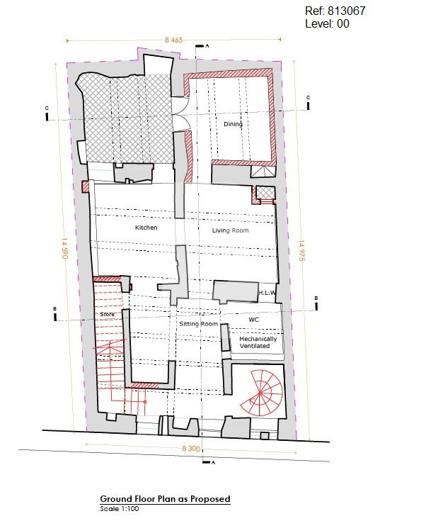
Situated in the heart of Mellieha’s picturesque and historic village core, this charming 4-bedroom house of character has been beautifully restored to preserve its authentic Maltese heritage while allowing for modern comfort. Tucked away on a peaceful street within the Urban Conservation Area (exempt from tax), the home offers both serenity and character, making it an ideal family residence or peaceful retreat.

Sold in shell form, the property presents a unique opportunity for buyers to personalise the interior to their taste, while retaining the timeless architectural features that give the home its distinct character. These include traditional elements such as exposed wooden beams, thick stone walls, patterned tiles, and arched doorways.

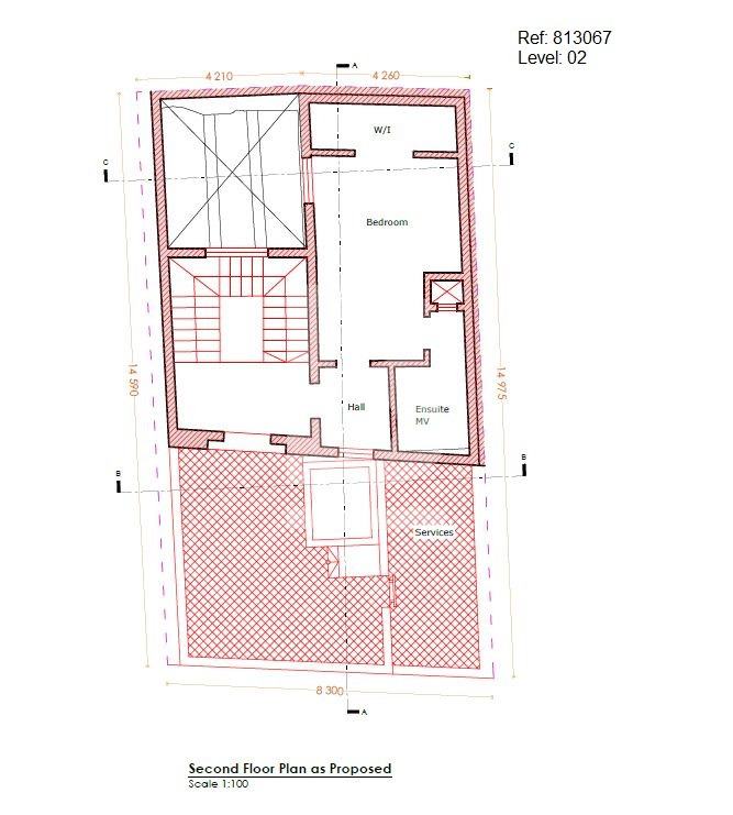
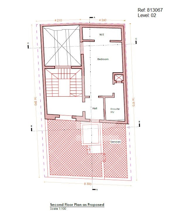
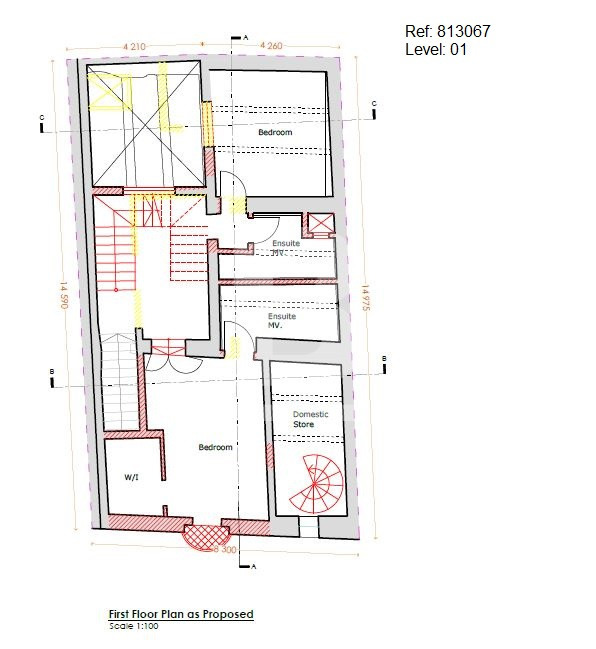
The layout comprises a welcoming entrance leading into a spacious living area, a separate dining room, guest bathroom, and a kitchen with access to a private backyard. Upstairs, you'll find three double bedrooms, each with an en suite bathroom—two of which also offer space for walk-in wardrobes. A fourth bedroom is located on an intermediate level and can easily function as a home office or study.

The rooftop terrace provides a perfect setting for relaxation or entertaining, with views of the iconic Mellieha church in the backdrop. Located just a short stroll from shops, restaurants, and historical sites, this home offers the best of traditional village life combined with modern-day convenience.

A rare chance to own a piece of Maltese heritage in one of the island’s most sought-after and charming locations.

IMPORTANT NOTICE: Renders used in this advert are presented to scale, using either the plans for the room/outdoor area within the property, or a picture of the actual room or outdoor area. It is only meant to give the viewer an idea of how the property could look once completed. Furniture and fittings are not included.



EPC Exemption Status: Owners to provide

Property Features

Property Location

Enquiry Form