Skip to main content

Office for sale

€ 15,800,000

Marsa | Semi Finished
  • Area 6000.00m2
  • Reference No. 806925

About the property

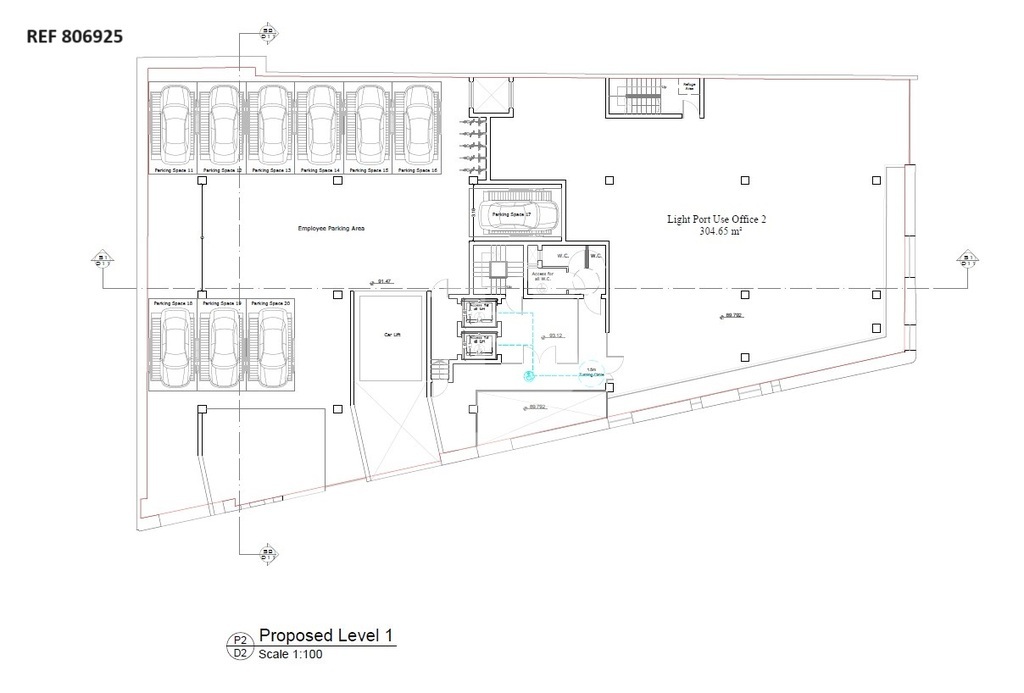
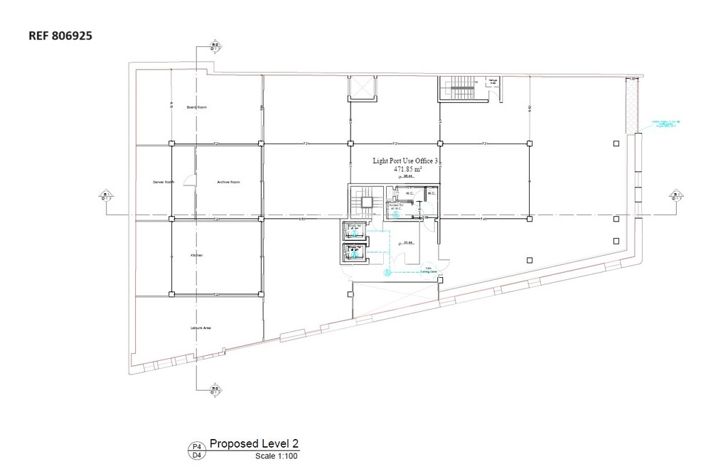
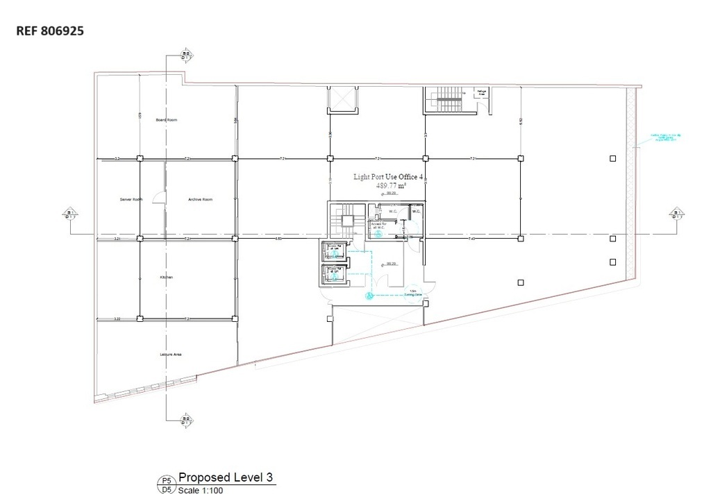
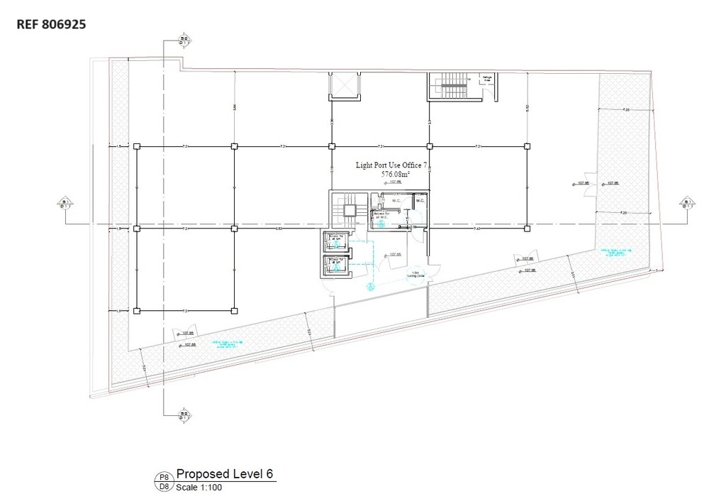
A unique, corner commercial property, in this upcoming location which is in the midst of a regeneration process. Overlooking the harbour and old wharfs, this office building / business centre has been built over the charming original facade and comprises 6 floors of office space totalling circa 6500 square metres. Once completed, this building will enjoy a very imposing corner facade, a lobby and premises at street level, 5 overlying floors and a receded penthouse level. The property is being offered with a fully finished facade and all communal areas, including fire saftey preparation, lifts and stairwells and is served by 2 passenger lifts, a main stiarwell as well as an emergency stairwell with a separate entrance from the road. Each floor offers circa 850 square metres of usable office space, enjoying views and good natural light from a majority of the floor space. The penthouse level is receded and enjoys a large surrounding terrace. Can be sold as a complete office building or business centre, alternatively the vendors will also consider selling part of. 

 

EPC Exemption Status: Owners to provide

Property Features

Property Location

Enquiry Form