Skip to main content

3 bed Apartment for sale

€ 390,000

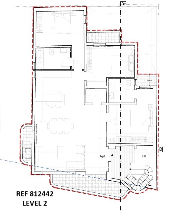
Balzan | Semi Finished
  • Bedroom 3 bedroom
  • Bathroom 2 bathroom
  • Area 138.00m2
  • Reference No. 812442

About the property

Bright and spacious second-floor, corner apartment, forming part of a small exclusive block of only 4 units, set to begin construction in January 2026, with completion expected by June 2027. Designed with both functionality and elegance in mind, the apartment occupies the entire floor and enjoys a wide frontage and square layout, allowing for abundant natural light throughout through its surrounding balconies. Comprising a spacious open-plan kitchen, living, and dining area, enjoying a terrace and side balcony, three well-sized bedrooms, main enjoying en-suite facilities, main bathroom, box room and 2 back balconies. The apartment will be fully thermally insulated and finished with high-quality PVC external apertures. It is being offered semi-finished, excluding bathrooms and internal doors, allowing future owners to personalise these elements to their own taste. The block will include a premium lift and a beautifully finished marble staircase, property is being sold freehold.

EPC Exemption Status: Owners to provide

Property Features

Property Location

Enquiry Form