Skip to main content

Plots for sale

€ 762,500

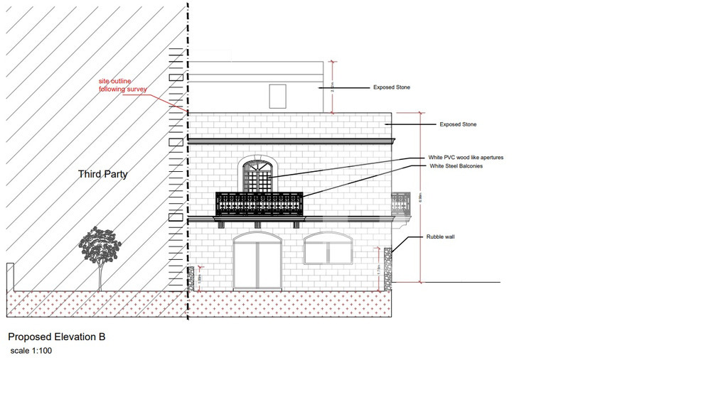
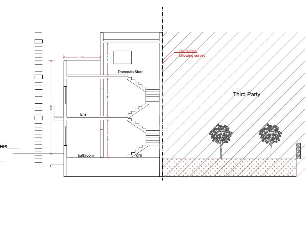
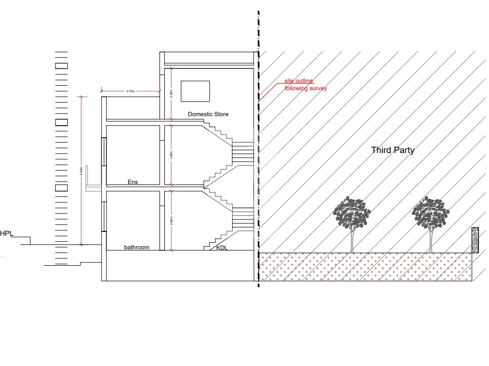
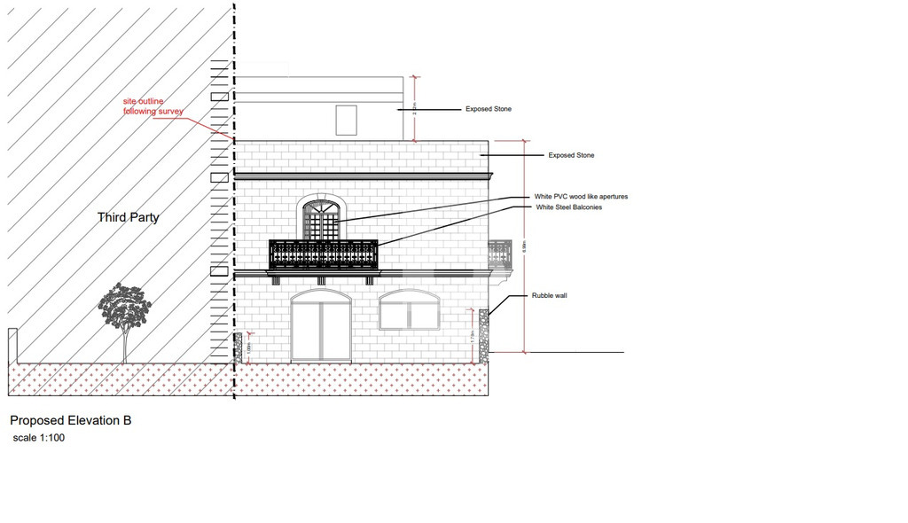
Xemxija | Permit in Hand
  • Area 167.00m2
  • Reference No. 815418

About the property

Land for Development ( permits in hand for a 2-storey house ). Situated in the quiet rural area of San Martin/Xemxija. Perfect for those seeking peace, quiet and tranquility while still being excellently located on the island. Plot size of approximately 167sqm and FREEHOLD.

 

EPC Exemption Status: Owners to provide

Property Features

Property Location

Enquiry Form