Skip to main content

3 bed Maisonette for sale

€ 395,000

Msida | Semi Finished
  • Bedroom 3 bedroom
  • Bathroom 2 bathroom
  • Area 200.00m2
  • Reference No. 815782

About the property

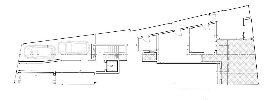
A ground floor maisonette located in Msida, being offered semi-finished, excluding bathrooms and internal doors.The property comprises a welcoming hallway leading to a spacious open-plan kitchen, living, and dining area, which opens onto a back terrace, ideal for outdoor enjoyment. Accommodation includes three double bedrooms, with the main bedroom benefiting from an en-suite shower room. Two of the bedrooms enjoy direct access to the back terrace. A main bathroom completes the layout. An ideal opportunity for buyers looking to finish and personalise their home to their own taste.



EPC Exemption Status: Owners to provide

Property Features

Property Location

Enquiry Form