Skip to main content

3 bed Maisonette for sale

€ 534,000

Birkirkara | Fully Furnished
  • Bedroom 3 bedroom
  • Bathroom 2 bathroom
  • Area 124.00m2
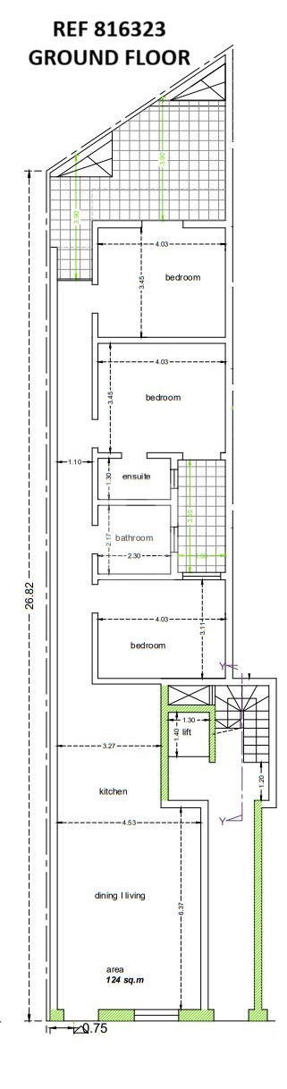
  • Reference No. 816323

About the property

Brand new 3-bedroom, 2-bathroom maisonette for sale in Birkirkara.
Situated in a quiet residential neighbourhood, this Fully Furnished ground-floor maisonette offers the perfect blend of space, comfort, and modern living. With a generous internal layout of approximately 105 sqm, this property is ideal for growing families, professionals seeking extra space, or buyers looking for a solid investment in a highly sought-after area.
The maisonnette features three spacious bedrooms, one of which enjoy private en-suite bathroom, along with a main family bathroom for added convenience. The heart of the home is a bright and airy open-plan kitchen, dining, and living area designed for both everyday living and entertaining, it welcomes natural light throughout the space. The corridor leads all the way to a wide backyard suitable for outside gathering, dining and outside enjoyment.
Property features:

• Fully furnished ground-floor Maisonnette
• Approx. 105sqm of internal space
• 3 generously sized bedrooms
• 2 bathrooms, including 1 en-suite
• Spacious open-plan kitchen, living, and dining area
• Wide backyard
• Located in a peaceful residential area
• Excellent layout with great natural light
This is an outstanding opportunity to personalise a modern home to your own taste while enjoying all the benefits of a central and convenient location close to daily amenities.

3 Car underground garage available at an addional cost.

EPC Exemption Status: Owners to provide

Property Features

Property Location

Enquiry Form