Skip to main content

3 bed Apartment for sale

€ 620,000

Naxxar | Finished
  • Bedroom 3 bedroom
  • Bathroom 2 bathroom
  • Area 170.00m2
  • Reference No. 816400

About the property

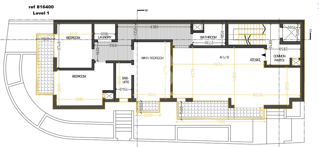
Three-Bedroom Corner Apartment with Surrounding Terraces

Situated on a corner within a smart luxury block in a quiet residential part of Naxxar. This  spacious 1st floor apartment enjoys excellent natural light and surrounding terraces. 
The layout comprises a generous open-plan kitchen / living / dining area leading onto a large terrace, three bedrooms, main bedroom with an en-suite, and a guest bathroom. A laundry room adds further practicality.
The property is currently in shell form and is being offered fully finished to high standards, including bathrooms and doors, making it ideal both as a family residence or a solid rental investment. Completion is scheduled for October 2026.
Optional lock-up garages are available.

 

 

EPC Exemption Status: Owners to provide

Property Features

Property Location

Enquiry Form