Skip to main content
Available now

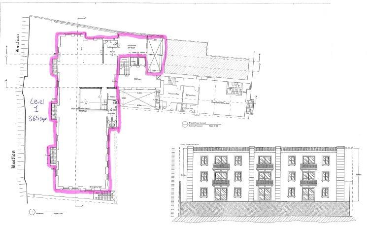
Office for rent

€ 70,000 Annually

Marsa | Finished
  • Area 365.00m2
  • Reference No. 136196

About the property

A beautifully converted vault office over looking the waterfront on the 1st floor measuring 365sqm of internal space. Located in a commercial and up and coming area in Marsa and just off the main arteries, with ample parking in the immediate vicinity, this office space is an superb investment for operation and growth. Specifications include male and female restrooms, shower facilities, fire alarms, fire doors and fire exits. PABX and CCTV systems, back-up power generator, 2 x 8 passenger lifts. Use of communal roof garden. Fully air-conditioned with training room, server room and seperate kitchen. Including 2 underlying car space.

EPC Exemption Status: Owners to provide

Property Features

Property Location

Enquiry Form